Espace propriétaire
fr

Votre recherche

Sous-compromis
Exclusivité
Coup de coeur
Caen (14000)

3 pièces - 76,86 m²

CAEN CENTRE APPARTEMENT 3 PIECES A VENDRE AVEC BALCON

236 500 €
Ref : VAP10001250
Découvrir le bien

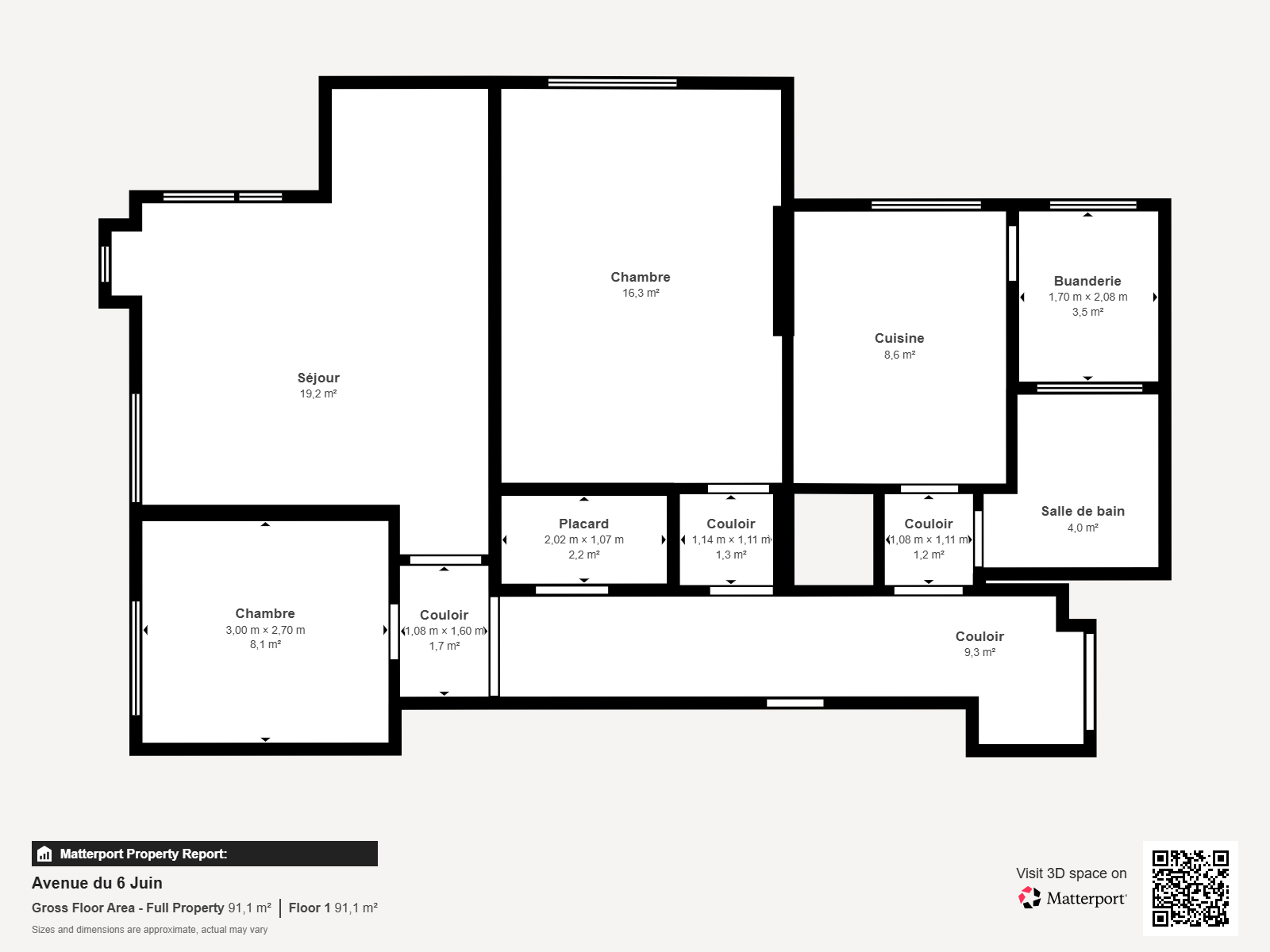
NOUVEAUTE EN EXCLUSIVITE au Cabinet QUESNEE - CAEN CENTRE, situé Avenue du Six Juin, Résidence Marine Est - arrêt de tram au pied de la résidence, proximité directe commerces, écoles et hyper-centre à pied, un bel appartement de 76m² de 3 pièces principales situé au huitième et dernier étage de la résidence, avec cave privative et local vélo dans la résidence.

Il est composé d'une vaste entrée avec de grands placards, une cuisine indépendante aménagée et équipée et une arrière cuisine, un séjour donnant sur un balcon, une salle de bains, un WC indépendant et 2 chambres dont une avec placard.

La superficie totale de l'appartement est de 76.86m².

Visite virtuelle disponible sur notre site internet.

Informations supplémentaires :

  • Chauffage collectif au gaz,
  • Classe consommation énergie : E, classe gaz à effet de serre : E

Montant estimé des dépenses annuelles d'énergie: entre 1999€ et 2705€. Estimation réalisée à partir des prix énergétiques de référence des années 2021, 2022 et 2023.

Quote part annuelle des charges : 2571.56€. Lot n°100, copropriété de 299 lots.

Prix du bien : 236 500€.

Les informations sur les risques auxquels ce bien est exposé sont disponibles sur le site georisques.gouv.fr.

Contactez nous afin d'organiser une visite au 02.31.34.08.50 ou au 06.08.15.49.74

TRAD_ZEPHYR_Caracteristique TRAD_ZEPHYR_Valeurs
Code postal 14000
Surface loi Carrez (m²) 76,86 m²
Nombre de chambre(s) 2
Nombre de pièces 3
Etage 8
Nombre de niveaux 1
Ascenseur OUI
copropriete OUI
copropriete_lot 100
copropriete_nb_lot 299
copropriete_quote_part 2 571,56 €
copropriete_plan_sauvegarde NON
copropriete_statut_syndicat pas de procédure en cours
TRAD_ZEPHYR_Caracteristique TRAD_ZEPHYR_Valeurs
Nb de salle de bains 1
Cuisine Séparée
Type de cuisine Equipée
Mode de chauffage Gaz
Type de chauffage Radiateur
Format de chauffage Collectif
Balcon OUI
Cave OUI
Année de construction 1953
TRAD_ZEPHYR_Caracteristique TRAD_ZEPHYR_Valeurs
Lot n° 100
nombre de lots 299
TRAD_ZEPHYR_Caracteristique TRAD_ZEPHYR_Valeurs
Prix de vente 236 500 €
Les honoraires d'agence seront intégralement à la charge du vendeur  
Taxe foncière annuelle 1 778 €
DPE GES
  • Commerces et santé
  • Loisirs
  • Ecoles
  • Transports
  • Pratique
Contacter pour ce bien
L'agence
Téléphone 02.31.34.08.50
Adresse
42, avenue du 6 juin 14000 Caen

* Champ obligatoire

Les informations recueillies sur ce formulaire sont enregistrées dans un fichier informatisé par La Boite Immo agissant comme Sous-traitant du traitement pour la gestion de la clientèle/prospects de l'Agence / du Réseau qui reste Responsable du Traitement de vos Données personnelles. La base légale du traitement repose sur l'intérêt légitime de l'Agence / du Réseau. Elles sont conservées jusqu'à demande de suppression et sont destinées à l'Agence / au Réseau. Conformément à la loi « informatique et libertés », vous disposez des droits d’accès, de rectification, d’effacement, d’opposition, de limitation et de portabilité de vos données. Vous pouvez retirer votre consentement à tout moment en contactant directement l’Agence / Le Réseau. Consultez le site https://cnil.fr/fr pour plus d’informations sur vos droits. Si vous estimez, après avoir contacté l'Agence / le Réseau, que vos droits « Informatique et Libertés » ne sont pas respectés, vous pouvez adresser une réclamation à la CNIL. Nous vous informons de l’existence de la liste d'opposition au démarchage téléphonique « Bloctel », sur laquelle vous pouvez vous inscrire ici : https://www.bloctel.gouv.fr Dans le cadre de la protection des Données personnelles, nous vous invitons à ne pas inscrire de Données sensibles dans le champ de saisie libre.
Ce site est protégé par reCAPTCHA, les Politiques de Confidentialité et les Conditions d'Utilisation de Google s'appliquent.

Découvrir nos outils