Espace propriétaire
fr

Votre recherche

Exclusivité
Caen (14000)

2 pièces - 34,93 m²

CAEN SECTEUR PORT PROCHE CENTRE-VILLE APPARTEMENT A VENDRE LOUE AVEC CAVE ET GARAGE

112 900 €
Ref : VAP10001303
Découvrir le bien

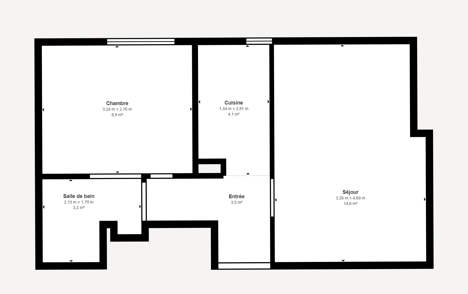
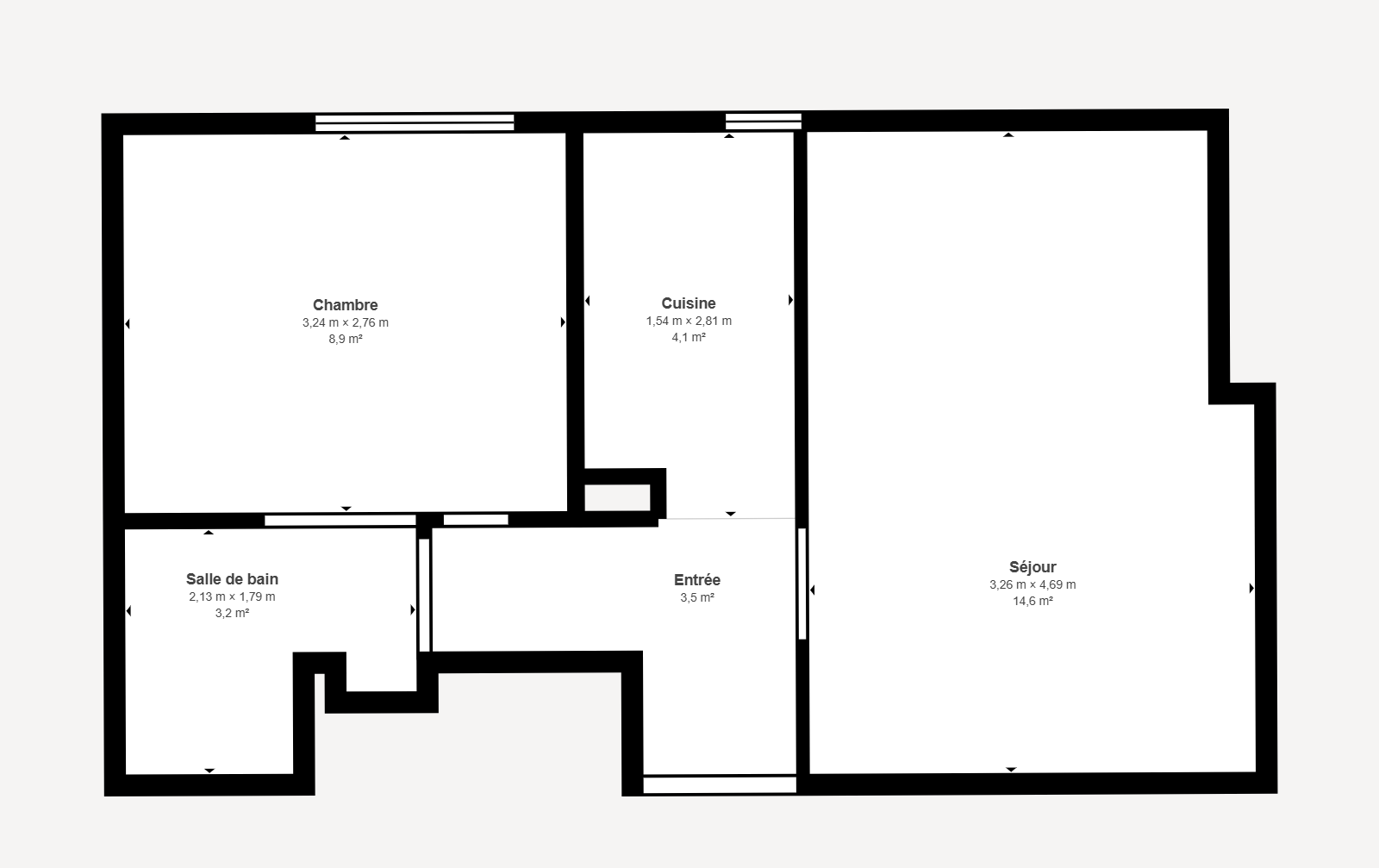
CAEN PROCHE CENTRE VILLE - Résidence Amiral de Tourville, Quartier Port de Plaisance, situé rue Basse, un appartement à vendre loué de 2 pièces principales de 34.93m² comprenant une entrée, un séjour donnant sur un jardinet privatif, une cuisine indépendante, une chambre, une salle de douches et un WC indépendant.

Un garage et une cave en sous-sol complètent ce bien.

La résidence est située à moins de 10min à pied du Port et de la Presqu'île et à 4min en vélo, à proximité des bus et tram et de tous commerces.

L'appartement est actuellement loué 468€ hc.

Consommation d'énergie : E (281kwh/an/m²), Gaz à effet de serre : B.

Montant estimé des dépenses annuelles d'énergie: entre 680€ et 950€. Estimation réalisée à partir des prix énergétiques de référence des années 2021.

Quote part annuelle de charges exercice 01/01/2024 au 31/12/2024: 1656.42€ (contenant la consommation d'eau froide des quatre dernières années de 1093.52€).

Prix du bien : 112 900€, honoraires à la charge du vendeur.

La visite virtuelle est disponible sur notre site internet www.cabinetquesnee.com.

Les informations sur les risques auxquels ce bien est exposé sont disponibles sur le site georisques.gouv.fr.

Cabinet QUESNEE 02.31.34.08.50/06.08.15.49.74.

TRAD_ZEPHYR_Caracteristique TRAD_ZEPHYR_Valeurs
Code postal 14000
Surface loi Carrez (m²) 34,93 m²
Nombre de chambre(s) 1
Nombre de pièces 2
copropriete OUI
copropriete_lot 274
copropriete_nb_lot 43
copropriete_quote_part 1 656,42 €
copropriete_plan_sauvegarde NON
copropriete_statut_syndicat pas de procédure en cours
TRAD_ZEPHYR_Caracteristique TRAD_ZEPHYR_Valeurs
Nb de salle de bains 1
Cuisine Séparée
Mode de chauffage Electrique
Type de chauffage Autre
Format de chauffage Individuel
Terrasse OUI
Nombre de garage 1
Cave OUI
Année de construction 1987
Quartier Port De Plaisance
TRAD_ZEPHYR_Caracteristique TRAD_ZEPHYR_Valeurs
Lot n° 274
nombre de lots 43
TRAD_ZEPHYR_Caracteristique TRAD_ZEPHYR_Valeurs
Prix de vente 112 900 €
Les honoraires d'agence seront intégralement à la charge du vendeur  
Taxe foncière annuelle 995 €
DPE GES
  • Commerces et santé
  • Loisirs
  • Ecoles
  • Transports
  • Pratique
Contacter pour ce bien
L'agence
Téléphone 02.31.34.08.50
Adresse
42, avenue du 6 juin 14000 Caen

* Champ obligatoire

Les informations recueillies sur ce formulaire sont enregistrées dans un fichier informatisé par La Boite Immo agissant comme Sous-traitant du traitement pour la gestion de la clientèle/prospects de l'Agence / du Réseau qui reste Responsable du Traitement de vos Données personnelles. La base légale du traitement repose sur l'intérêt légitime de l'Agence / du Réseau. Elles sont conservées jusqu'à demande de suppression et sont destinées à l'Agence / au Réseau. Conformément à la loi « informatique et libertés », vous disposez des droits d’accès, de rectification, d’effacement, d’opposition, de limitation et de portabilité de vos données. Vous pouvez retirer votre consentement à tout moment en contactant directement l’Agence / Le Réseau. Consultez le site https://cnil.fr/fr pour plus d’informations sur vos droits. Si vous estimez, après avoir contacté l'Agence / le Réseau, que vos droits « Informatique et Libertés » ne sont pas respectés, vous pouvez adresser une réclamation à la CNIL. Nous vous informons de l’existence de la liste d'opposition au démarchage téléphonique « Bloctel », sur laquelle vous pouvez vous inscrire ici : https://www.bloctel.gouv.fr Dans le cadre de la protection des Données personnelles, nous vous invitons à ne pas inscrire de Données sensibles dans le champ de saisie libre.
Ce site est protégé par reCAPTCHA, les Politiques de Confidentialité et les Conditions d'Utilisation de Google s'appliquent.

Découvrir nos outils