Espace propriétaire
fr

Votre recherche

Nouveauté
Caen (14000)

3 pièces - 50,58 m²

CAEN RIVE DROITE APPARTEMENT T3 A VENDRE LOUE AVEC CAVE

99 900 €
Ref : V0P10001004
Découvrir le bien

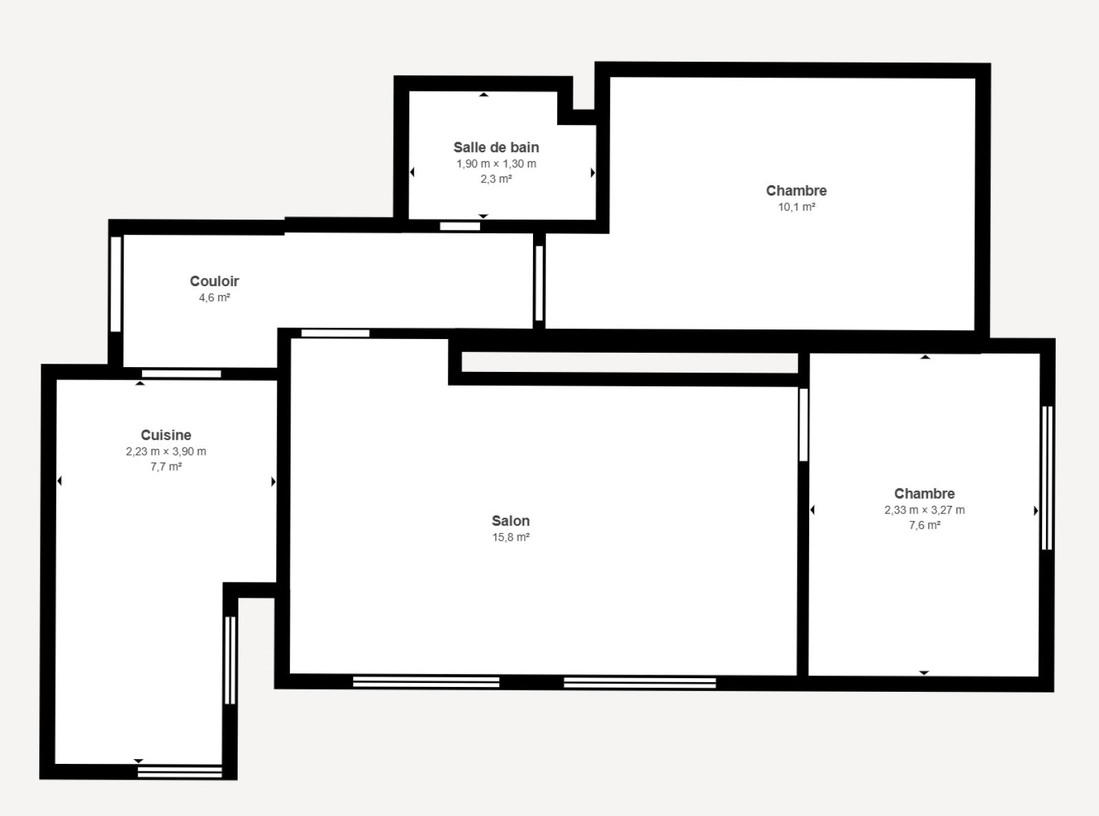
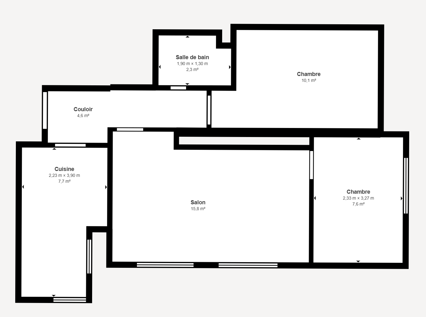
CAEN RIVE DROITE - Quartier Sainte-Thérèse/Demi-Lune, un appartement à vendre loué de 3 pièces principales de 50.58m² comprenant une entrée avec placards, un séjour, une cuisine indépendante aménagée, une salle de douches, un WC indépendant, une chambre donnant sur un balcon et un bureau.

Une cave en sous-sol.

Appartement actuellement loué 505€ hc.

Consommation d'énergie : F (347kwh/an/m²), Gaz à effet de serre : F

Montant estimé des dépenses annuelles d'énergie: entre 2142€ et 2898€. Estimation réalisée à partir des prix énergétiques de référence des années 2021, 2022 et 2023

Quote part annuelle de charges exercice 01/01/2024 au 31/12/2024 : 1792.21€

Prix du bien : 99 900€, honoraires à la charge du vendeur.

La visite virtuelle est disponible sur notre site internet www.cabinetquesnee.com

Les informations sur les risques auxquels ce bien est exposé sont disponibles sur le site georisques.gouv.fr

Cabinet QUESNEE 02.31.34.08.50/06.08.15.49.74

TRAD_ZEPHYR_Caracteristique TRAD_ZEPHYR_Valeurs
Code postal 14000
Surface loi Carrez (m²) 50,58 m²
Nombre de chambre(s) 2
Nombre de pièces 3
Etage 7
Ascenseur OUI
copropriete OUI
copropriete_lot 106
copropriete_nb_lot 78
copropriete_quote_part 1 792,21 €
copropriete_plan_sauvegarde NON
copropriete_statut_syndicat pas de procédure en cours
TRAD_ZEPHYR_Caracteristique TRAD_ZEPHYR_Valeurs
Nb de salle d'eau 1
Cuisine Séparée
Type de cuisine SEMI-EQUIPEE
Mode de chauffage Fioul
Type de chauffage Radiateur
Format de chauffage Collectif
Balcon OUI
Cave OUI
Année de construction 1959
TRAD_ZEPHYR_Caracteristique TRAD_ZEPHYR_Valeurs
Lot n° 106
nombre de lots 78
TRAD_ZEPHYR_Caracteristique TRAD_ZEPHYR_Valeurs
Prix de vente 99 900 €
Les honoraires d'agence seront intégralement à la charge du vendeur  
Taxe foncière annuelle 980 €
DPE GES
  • Commerces et santé
  • Loisirs
  • Ecoles
  • Transports
  • Pratique
Contacter pour ce bien
L'agence
Téléphone 02.31.34.08.50
Adresse
42, avenue du 6 juin 14000 Caen

* Champ obligatoire

Les informations recueillies sur ce formulaire sont enregistrées dans un fichier informatisé par La Boite Immo agissant comme Sous-traitant du traitement pour la gestion de la clientèle/prospects de l'Agence / du Réseau qui reste Responsable du Traitement de vos Données personnelles. La base légale du traitement repose sur l'intérêt légitime de l'Agence / du Réseau. Elles sont conservées jusqu'à demande de suppression et sont destinées à l'Agence / au Réseau. Conformément à la loi « informatique et libertés », vous disposez des droits d’accès, de rectification, d’effacement, d’opposition, de limitation et de portabilité de vos données. Vous pouvez retirer votre consentement à tout moment en contactant directement l’Agence / Le Réseau. Consultez le site https://cnil.fr/fr pour plus d’informations sur vos droits. Si vous estimez, après avoir contacté l'Agence / le Réseau, que vos droits « Informatique et Libertés » ne sont pas respectés, vous pouvez adresser une réclamation à la CNIL. Nous vous informons de l’existence de la liste d'opposition au démarchage téléphonique « Bloctel », sur laquelle vous pouvez vous inscrire ici : https://www.bloctel.gouv.fr Dans le cadre de la protection des Données personnelles, nous vous invitons à ne pas inscrire de Données sensibles dans le champ de saisie libre.
Ce site est protégé par reCAPTCHA, les Politiques de Confidentialité et les Conditions d'Utilisation de Google s'appliquent.

Découvrir nos outils