Espace propriétaire
fr

Votre recherche

Caen (14000)

8 pièces - 133 m²

CAEN MAISON D'HABITATION DE 8 PIECES PRINCIPALES A VENDRE

375 000 €
Ref : VMA10001246
Découvrir le bien

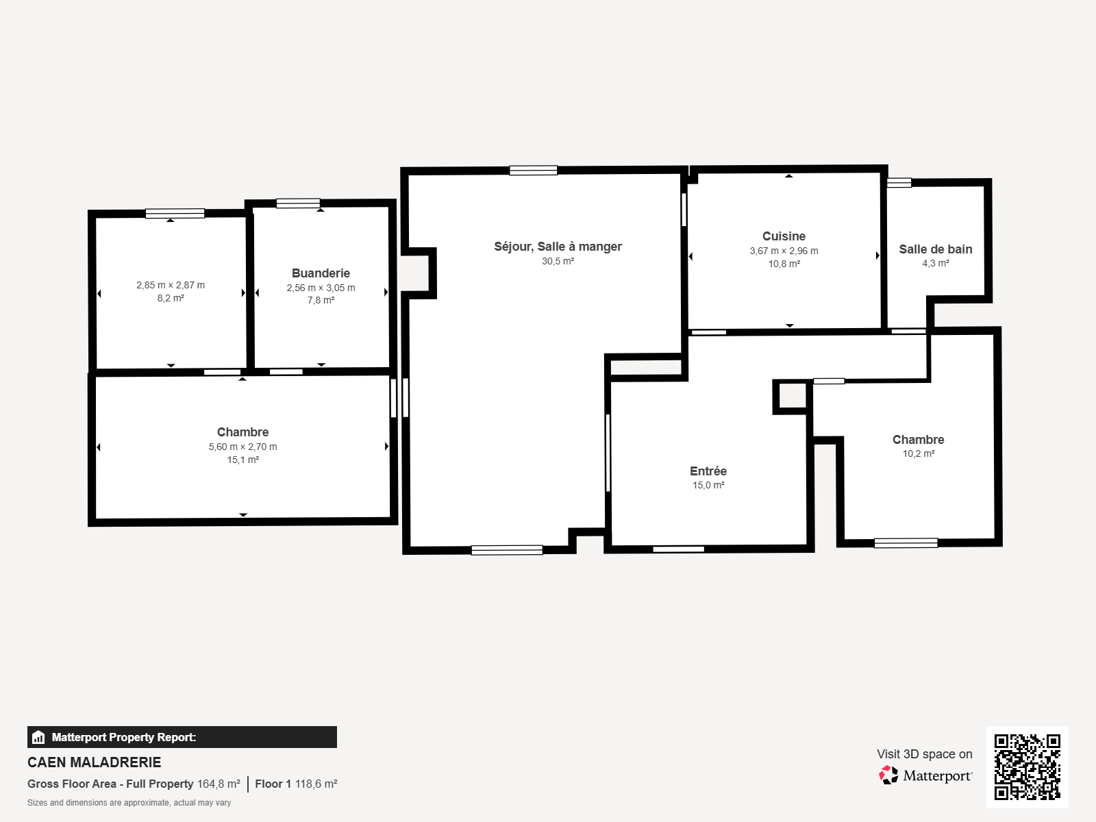
CAEN - Quartier Maladrerie - Maison familiale d'habitation de 8 pièces principales de 133m² habitables comprenant au rez-de-chaussée un grand hall d'entrée, un séjour/salon avec cheminée, une cuisine aménagée indépendante, deux chambres, un bureau (ou petite chambre 8m²), une salle de douches, un WC indépendant, une buanderie et combles aménageables en chambre.

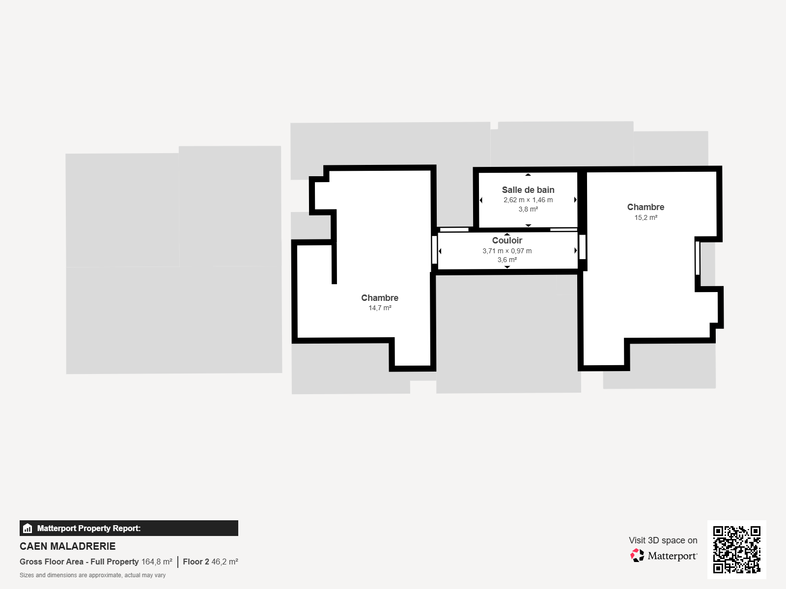
A l'étage, 2 chambres, une salle de douches et un WC indépendant.

Le tout sur un terrain de 804m².

A l'extérieur, vous pourrez profiter d'un jardin clos, de deux garages dont un double (possibilité camping-car) et un atelier.

Accès facile vers Bayeux, tous commerces et transports en communs à proximité.

Consommation d'énergie : D , Gaz à effet de serre : B

Montant estimé des dépenses annuelles d'énergie : entre 2400€ et 3310€. Estimation réalisée à partir des prix énergétiques de référence de l'année 2021, 2022 et 2023.

Visite virtuelle disponible sur notre site internet.

Le prix de vente est de 375 000€.

Les informations sur les risques auxquels ce bien est exposé sont disponibles sur le site georisques.gouv.

Contactez-nous dès maintenant pour plus d'informations

Négociateur de ce bien : Elsa ALEXANDRE 06.08.15.49.74 L'agence: Cabinet QUESNÉE Immobilier 02 31 34 08 50

TRAD_ZEPHYR_Caracteristique TRAD_ZEPHYR_Valeurs
Code postal 14000
surface terrain 804 m²
Surface loi Carrez (m²) 133 m²
Nombre de chambre(s) 4
Nombre de pièces 8
Nombre de niveaux 2
copropriete NON
TRAD_ZEPHYR_Caracteristique TRAD_ZEPHYR_Valeurs
Nb de salle d'eau 2
Cuisine Séparée
Type de cuisine Equipée
Mode de chauffage Electrique, Bois
Type de chauffage Convecteur, Cheminée
Format de chauffage Individuel, Individuel
Nombre de garage 2
Année de construction 1978
TRAD_ZEPHYR_Caracteristique TRAD_ZEPHYR_Valeurs
Prix de vente 375 000 €
Les honoraires d'agence seront intégralement à la charge du vendeur  
Taxe foncière annuelle 2 813 €
DPE GES
  • Commerces et santé
  • Loisirs
  • Ecoles
  • Transports
  • Pratique
Contacter pour ce bien
L'agence
Téléphone 02.31.34.08.50
Adresse
42, avenue du 6 juin 14000 Caen

* Champ obligatoire

Les informations recueillies sur ce formulaire sont enregistrées dans un fichier informatisé par La Boite Immo agissant comme Sous-traitant du traitement pour la gestion de la clientèle/prospects de l'Agence / du Réseau qui reste Responsable du Traitement de vos Données personnelles. La base légale du traitement repose sur l'intérêt légitime de l'Agence / du Réseau. Elles sont conservées jusqu'à demande de suppression et sont destinées à l'Agence / au Réseau. Conformément à la loi « informatique et libertés », vous disposez des droits d’accès, de rectification, d’effacement, d’opposition, de limitation et de portabilité de vos données. Vous pouvez retirer votre consentement à tout moment en contactant directement l’Agence / Le Réseau. Consultez le site https://cnil.fr/fr pour plus d’informations sur vos droits. Si vous estimez, après avoir contacté l'Agence / le Réseau, que vos droits « Informatique et Libertés » ne sont pas respectés, vous pouvez adresser une réclamation à la CNIL. Nous vous informons de l’existence de la liste d'opposition au démarchage téléphonique « Bloctel », sur laquelle vous pouvez vous inscrire ici : https://www.bloctel.gouv.fr Dans le cadre de la protection des Données personnelles, nous vous invitons à ne pas inscrire de Données sensibles dans le champ de saisie libre.
Ce site est protégé par reCAPTCHA, les Politiques de Confidentialité et les Conditions d'Utilisation de Google s'appliquent.

Découvrir nos outils