Espace propriétaire
fr

Votre recherche

Sous-offre
Exclusivité
Nouveauté
Caen (14000)

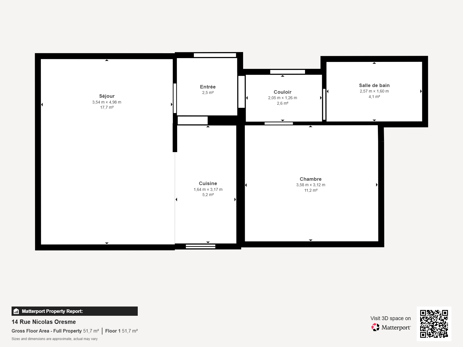
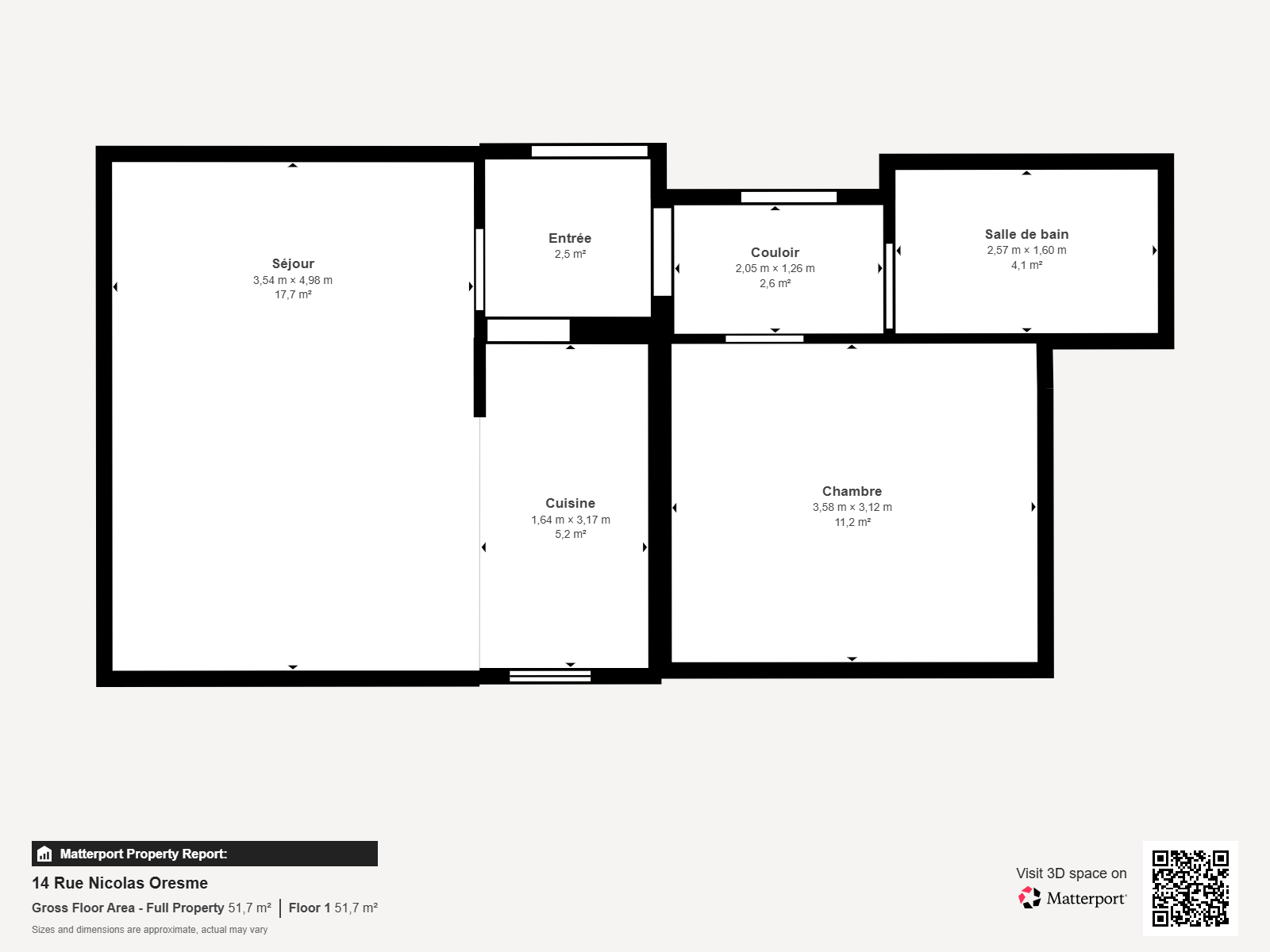
2 pièces - 43,93 m²

CAEN BEAULIEU APPARTEMENT A VENDRE AVEC CAVE ET PLACE DE PARKING EN SOUS SOL

139 900 €
Ref : VAP110001243
Découvrir le bien

EN EXCLUSIVITE - CAEN - Quartier Beaulieu, Rue Nicolas Oresme, un appartement à vendre de 2 pièces principales de 43.93m² comprenant une entrée avec placard, un séjour donnant sur un petit balcon, une cuisine ouverte sur le séjour aménagée, une chambre avec un placard, une salle de douches et un WC indépendant.

Un place de parking et une cave en sous-sol complètent ce bien.

Consommation d'énergie : D , Gaz à effet de serre : B

Montant estimé des dépenses annuelles d'énergie : 387 €. Estimation réalisée à partir des prix énergétiques de référence des années 2021, 2022 et 2023.

Quote part annuelle de charges: 1371.44€.

Prix du bien: 139 900€, honoraires à la charge du vendeur.

La visite virtuelle est disponible sur demande.

Les informations sur les risques auxquels ce bien est exposé sont disponibles sur le site georisques.gouv.fr.

Cabinet QUESNEE 02.31.34.08.50/06.08.15.49.74.

TRAD_ZEPHYR_Caracteristique TRAD_ZEPHYR_Valeurs
Code postal 14000
Surface loi Carrez (m²) 43,93 m²
Nombre de chambre(s) 1
Nombre de pièces 2
Etage 1
Ascenseur OUI
copropriete OUI
copropriete_lot 278
copropriete_nb_lot 234
copropriete_quote_part 1 371,44 €
copropriete_plan_sauvegarde NON
copropriete_statut_syndicat pas de procédure en cours
TRAD_ZEPHYR_Caracteristique TRAD_ZEPHYR_Valeurs
Nb de salle de bains 1
Cuisine Américaine
Type de cuisine SEMI-EQUIPEE
Mode de chauffage Electrique
Type de chauffage Convecteur
Format de chauffage Individuel
Balcon OUI
Cave OUI
Exposition Sud-Ouest
Année de construction 1997
Quartier Beaulieu
TRAD_ZEPHYR_Caracteristique TRAD_ZEPHYR_Valeurs
Lot n° 278
nombre de lots 234
TRAD_ZEPHYR_Caracteristique TRAD_ZEPHYR_Valeurs
Prix de vente 139 900 €
Les honoraires d'agence seront intégralement à la charge du vendeur  
DPE GES
  • Commerces et santé
  • Loisirs
  • Ecoles
  • Transports
  • Pratique
Contacter pour ce bien
L'agence
Téléphone 02.31.34.08.50
Adresse
42, avenue du 6 juin 14000 Caen

* Champ obligatoire

Les informations recueillies sur ce formulaire sont enregistrées dans un fichier informatisé par La Boite Immo agissant comme Sous-traitant du traitement pour la gestion de la clientèle/prospects de l'Agence / du Réseau qui reste Responsable du Traitement de vos Données personnelles. La base légale du traitement repose sur l'intérêt légitime de l'Agence / du Réseau. Elles sont conservées jusqu'à demande de suppression et sont destinées à l'Agence / au Réseau. Conformément à la loi « informatique et libertés », vous disposez des droits d’accès, de rectification, d’effacement, d’opposition, de limitation et de portabilité de vos données. Vous pouvez retirer votre consentement à tout moment en contactant directement l’Agence / Le Réseau. Consultez le site https://cnil.fr/fr pour plus d’informations sur vos droits. Si vous estimez, après avoir contacté l'Agence / le Réseau, que vos droits « Informatique et Libertés » ne sont pas respectés, vous pouvez adresser une réclamation à la CNIL. Nous vous informons de l’existence de la liste d'opposition au démarchage téléphonique « Bloctel », sur laquelle vous pouvez vous inscrire ici : https://www.bloctel.gouv.fr Dans le cadre de la protection des Données personnelles, nous vous invitons à ne pas inscrire de Données sensibles dans le champ de saisie libre.
Ce site est protégé par reCAPTCHA, les Politiques de Confidentialité et les Conditions d'Utilisation de Google s'appliquent.

Découvrir nos outils